联系电话:13720000781
业务微信:nsgf13720000781
投诉微信:z599777888
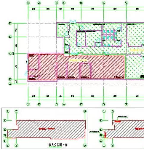
近期,建筑设计南水设计院承接了北京某餐饮店的消防设计。工程概况:3. 原建筑物工程概况:建筑面积1010万平方米;层数:地上1层;建筑高度:7.5m;建筑功能:配套商业;建筑分类:单层民用建筑; 耐火等级:二级;结构形式:钢筋混凝土结构。本次装修改造工程概况:改造项目位于建筑物地上1层局部;装修改造后功能为餐饮,本次装修面积1010平方米;
防烟部分:
楼梯间、前室部分不在本次改造设计范围内。不涉及防烟部分的设计。
排烟部分:
本层设置排烟部分:
1、超过20m长,且不可自然排烟的内走道;
2、地上总建筑面积大于200㎡的无窗房间部分。
